/

/

Stan 16

Stan 16

Železnička 14, 21000 Novi Sad

Stan ukupne površine 78,22 m², smešten na trećem spratu i orijentisan ka dvorištu, raspoređen je tako da obuhvata hodnik, dva kupatila, dve spavaće sobe, dnevni boravak i terasu, uz mogućnost izbora Prestige paketa.

Preuzmi detaljan nacrt stana

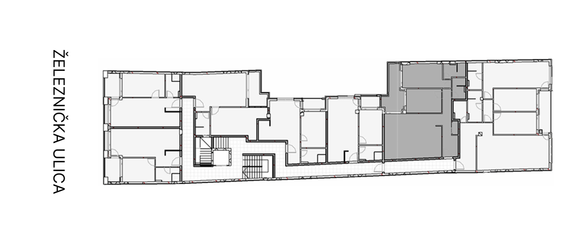
STAN 16 SPRAT III

Preuzmi dokument o zgradu

Projekat Mira

Informacije o stanu

Sprat

3

Broj soba

2 spavaće sobe

Kvadratura m2

78,22 m2

Broj kupatila

2

Orijentacija

Dvorište

Broj toaleta

/

Grejanje

Gradsko + toplotne pumpe

Terasa

Da

RASPORED STANA

Dnevni boravak

9,42 m2

Soba 1

13 m2

Kupatilo 1

3,45 m2

Soba 2

10,66 m2

Kupatilo 2

3,92 m2

Hodnik

9,42 m2

Terasa

8,86 m2

78,22 m2

dodatne informacije

Plafon

Standard od 3 do 4m

Parket

I klasa; višeslojan, termotretiran

Vrata

Standard

Keramika

I klasa; Italijanska i španska

Fasada objekta izvedena je od prestižnog bračkog kamena San Pietro, dok je stolarija drvo–aluminijum sa troslojnim staklom. Grejanje i hlađenje obezbeđeno je putem nezavisnih toplotnih pumpi za svaku stambenu jedinicu, uz izuzetnu zvučnu i termoizolaciju, kao i električne liftove premium klase većih dimenzija.

paketi

ESSENTIAL

  • Troslojni parket
  • Aluminijumska stolarija sa troslojnim staklima
  • Sanitarije i slavine renomiranih proizvođača
  • Keramika vrhunskih španskih ili italijanskih proizvođača
  • Unutrašnja vrata bez vidljivih nosača, sa magnetnim bravama
  • Priprema za klima uređaj
  • Prekidači i utičnice serije Experience – izbor boja po želji
  • Dvocevni sistem centralnog grejanja
  • Dodatna zvučna i toplotna izolacija Termosilence 100 mm

PRESTIGE

Premium kategorija – za istinski luksuz i savremeni stil života. Prestige paket sadrži sve iz Essential paketa, uz mogućnosti koje podižu standard:

  • Podno grejanje putem toplotne pumpe i plafonsko hlađenje difuzorima
  • Aluminijum-drvo stolarija u boji po izboru, sa troslojnim staklima
  • Samostojeća kada sa podnom slavinom
  • Smart home sistem OBLO Living – kontrola svetla, temperature i potrošnje energije

*Prestige paket odnosi se na veće stanove.

* Konačna cena formira se u skladu sa kvadraturom, stepenom opremljenosti, pozicijom u objektu i spratom, kako bi svaki kupac dobio stan prilagođen upravo svojim željama i potrebama.

Orijentacija stana

Stan u modernoj zgradi, funkcionalnog rasporeda sa prostranim dnevnim boravkom i prirodnim osvetljenjem. Kuhinja je praktično povezana sa trpezarijom, spavaća soba udobna i mirna, a kupatilo renovirano. Hodnik vodi ka svim prostorijama, uz više plakara za odlaganje. Idealno za udoban gradski život.

Garaža

Broj mesta

44

U okviru zgrade nalazi se moderna podzemna garaža sa liftom za automobile, što omogućava lak i brz pristup parking mestu. Prostor je osvetljen LED rasvetom, obezbeđen video-nadzorom i ventilacijom, a sistem kontrole pristupa garantuje sigurnost.

lokacija

Centar

0 m

Supermarket

150 m

Tržni centar

700 m

Vrtić

200 m

Glavna pošta

100 m

Pešačka zona

300 m

Preuzmi detaljan nacrt stana

STAN 16 SPRAT III

Preuzmi dokument o zgradu

Projekat Mira

Preuzmi dokument o zgradu

Projekat Mira

Call Now Button